We use a cookie for this feature. This is so that the feature continues to work as you navigate the website and to save it so it's still available when you return.
As you search for a care home, add your shortlisted homes here by clicking the heart icon. You'll find all your choices here for ease of reference.
We use a cookie for this feature. This is so that the feature continues to work as you navigate the website and to save it so it's still available when you return.
To help us get you to the correct contact information as quickly as possible, please select from the below options that most closely matches your needs.
Why not give our easy-to-use care home search tool to find your nearest Care UK care home and call our dedicated customer support team about the home you are interested in.
Whether you are looking for information, wishing to provide feedback or make a complaint, our team always loves hearing from our current customers and are ready to help.
If you are looking for a role with Care UK or at one of our homes, the quickest way for us to help you is through our dedicated careers website where you can find and apply for vacancies near you.
We have an experienced media relations team based in our Essex support office. This is the first port of call for any journalist who wishes to make an enquiry about Care UK or any of our homes.
Whether you are an existing partner or supplier, or a care professional looking to work with Care UK, our team will be happy to assist.
Care UK
Connaught House
850 The Crescent
Colchester Business Park
Colchester
Essex
CO4 9QB (for satnav please use CO4 9YQ)
Find us on Google Maps
Event
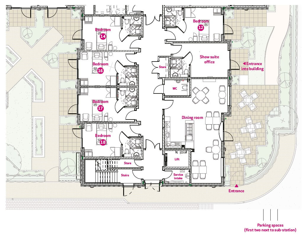
Discover a new standard of care in Southampton at The Wickets, a stunning, purpose-built care home featuring 80 beautifully decorated bedrooms, each with a private en-suite.
Designed with comfort and wellbeing in mind, The Wickets features indulgent amenities including an in-home cinema, café, pub-style bar, hair and beauty salon, landscaped gardens, and bright, welcoming communal areas. It’s a new benchmark for luxury living and holistic care.
Get a feel for life at The Wickets by visiting our beautifully designed show suite. Step inside a stylish dining room and explore a selection of bedrooms, each with its own unique decor, including a Serenity Bed Suite, featuring a plush queen-size adjustable bed for added style and comfort.
You can also experience our innovative CGI virtual tour technology, allowing you to explore the entire home from our spacious lounges and inviting café to the beautiful, landscaped gardens.
Meet our friendly team, learn more about our personalised approach to care, and ask any questions you may have.
Reserve your room today and we’ll fix the fees until 2027.

3 Banister Road, Just off The Avenue, Southampton, Hampshire, SO15 2EN
The Wickets